Gemeinde Bülstringen

Verbandsgemeinde Flechtingen
Lindenplatz 11-15
39345 Flechtingen
Ansprechpartner / in
Frau Mareen Cieslik
Tel.: 039054/986-138
m.cieslik@vg-flechtingen.de

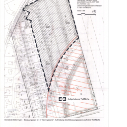
Bebauungsplan Nr.

03

Wohngebiet 02

Teilaufhebung
vom 02.05.2018

Planzeichnung

Alle Dokumente zu

Teilaufhebung

vom 02.05.2018

Planzeichnung
Dokumente
Begründung